

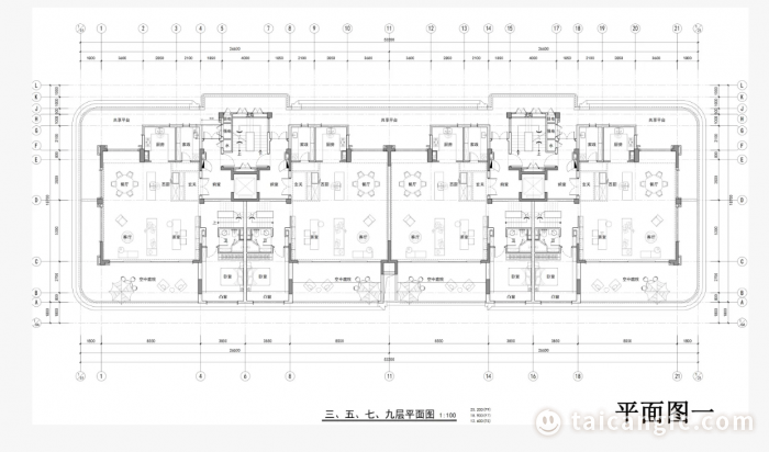
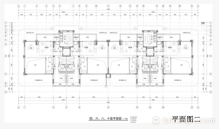
近日,太仓市人民政府网发布了关于科教新城书院路东、鹊桥路南地块(湖上云庭项目)的最新规划调整!结合此前公示规划及项目披露的信息来看,该项目共计建设有12栋总高8-10小高层,共计住户246户,产品设计建筑面积约为175-290㎡,项目产品设计很大程度上区别于现有房产项目,对于精细化购房群体或将产生不小的影响!从此前发布会上的内容来看,空中庭院设计是该项目最大的亮点之一,但值得注意的是,该项目的整体售价预计相对较高,更多消息请持续关注我们!

近期,太仓市人民政府网站发布了《建设工程规划批前公示(太仓市至城地产有限公司新建320585002206GB02543号地块住宅用房及其配套用房规划建筑设计调整方案)》最新规划公示文件。



此前,太仓市人民政府网发布了《建设工程规划批后公布(太仓市至城地产有限公司新建320585002206GB02543号地块住宅用房及其配套用房项目(1-13#楼、15#楼、地下车库))》





太仓房产信息咨询
添加微信,注明“买房”
太房热线为您服务
更多太仓楼市信息请继续关注-太房热线。

凡注明非太房热线来源的作品,作品版权归原发布媒体及文章作者所有。本网转载文章出于传递更多信息之目的,并不意味着赞同其观点或证实其内容的真实性,亦不构成任何建议。