

近日,太仓人民政府网发布了,扩建弇山小学项目的规划调整方案公示!
近年来,随着城厢镇开发建设的步伐不断加快,居民数量日益增多,弇山小学规模较小且教学建筑老旧,已无法满足需求。弇山小学的改扩建工程能进一步丰富和完善学校相关配套设施,并满足学生多样化的教育需求。项目于2024年5月16日正式开工,据此前信息,该项目计划今年10月底前投入使用。

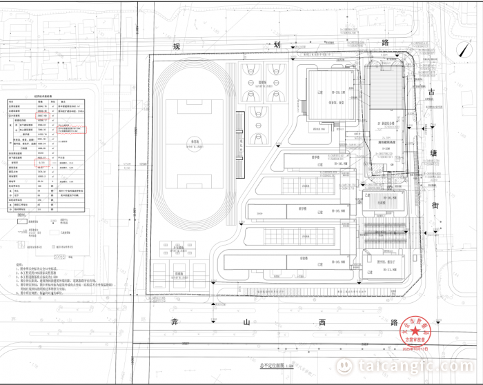
近期,太仓市人民政府网站发布了《建设工程规划批后公布(城厢镇人民政府扩建弇山小学项目(综合楼))》最新规划公示文件。





延伸阅读:

此次扩建主体为学校综合楼,共计五层,建筑整体造型采用橙白相间的色彩风格,兼具实用化功能作用与年轻化审美风格。其中内部涉及到多功能教室、办公室、报告厅、地下车库等多样化的功能性设施。

太仓房产信息咨询
添加微信,注明“买房”
太房热线为您服务
更多太仓楼市信息请继续关注-太房热线。

凡注明非太房热线来源的作品,作品版权归原发布媒体及文章作者所有。本网转载文章出于传递更多信息之目的,并不意味着赞同其观点或证实其内容的真实性,亦不构成任何建议。