

近日,太仓人民政府网发布了,娄江新城十八港路东、滨河新路北住宅项目的规划方案公示!该地块由城投集团于2023年12月竞得!
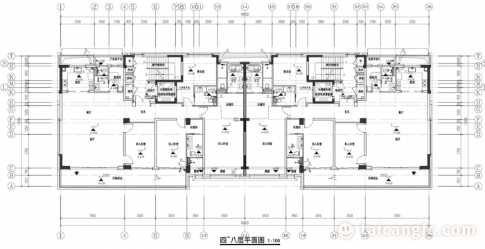
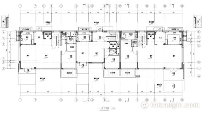
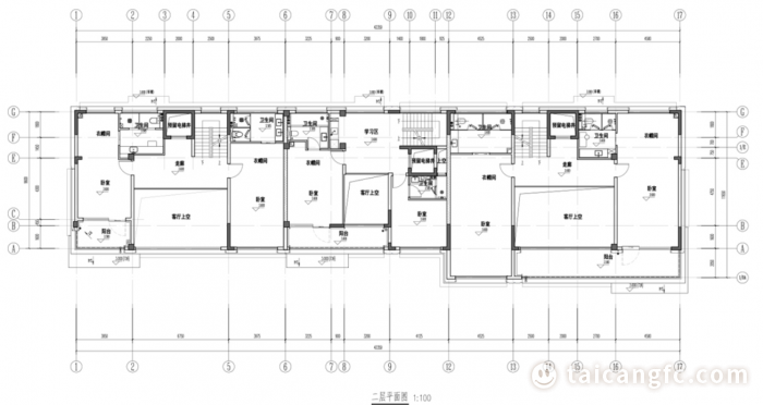
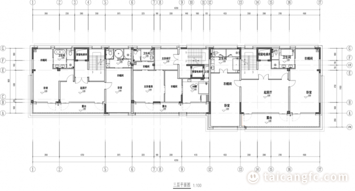
该地块出让面积34658.7㎡,1<容积率≤1.05,成交总价54588万元,成交楼面价15000元/㎡。据此前发布的规划平面图来看,项目共计规划有115套房源,由64套洋房和51套别墅组成,且根据土拍成交价格,该项目预计将会刷新娄江新城新房均价,大概率将会突破3万元/㎡。从项目整体布局上来看属于豪宅产品,低密度的规划使得项目整体体量较小,但就目前太仓娄江新城周边项目去化情况来看,预计整体流速或将放缓,我们也将持续关注!添加客服号“taicangfc001”了解更多太仓房产信息!

近期,太仓市人民政府网站发布了《建设工程规划批后公布(太仓市禾起置地有限公司新建320585002205GB03018号地块住宅用房及其配套用房项目(1-25#、P3#、地库))》最新规划公示文件。





该地块于2023年12月25日由太仓市淏城房地产开发有限公司(太仓市城市建设投资集团有限公司)竞得!




太仓房产信息咨询
添加微信,注明“买房”
太房热线为您服务
更多太仓楼市信息请继续关注-太房热线。

凡注明非太房热线来源的作品,作品版权归原发布媒体及文章作者所有。本网转载文章出于传递更多信息之目的,并不意味着赞同其观点或证实其内容的真实性,亦不构成任何建议。