

近日,太仓人民政府网发布了,关于大润发东侧地块用地性质调整为商服用地,以及金仓湖康养中心项目最新调整规划!
大润发东侧锦州路段新增商服用地,预计整体项目体量较小,该地块为原太仓广电用地,目前周边住宅基本饱和以老小区为主,人流量相对较多且稳定,期待后续土地开发和项目建设!金仓湖康养中心作为太仓首个老年康养中心示范区,此次规划调整主要针对外观,并未对内部结构进行改变。太仓也有望凭借金仓湖康养中心等项目,吸引更多周边地区人群前来康养、旅游,也能提升太仓城市的知名度和影响力!请添加客服微信号“taicangfc001”了解更多最新配套资讯!

近期,太仓市人民政府网站发布了《江苏省太仓高新技术产业开发区控制性详细规划2025年第二批局部地块调整规划公示》最新规划公示文件。


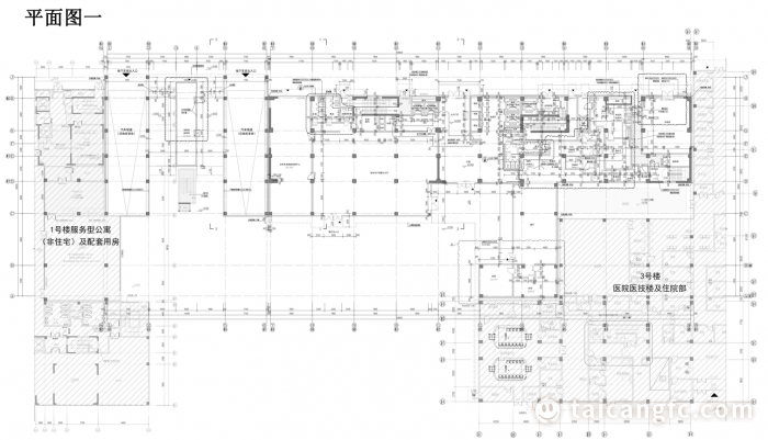
近期,太仓市人民政府网站发布了《建设工程规划批后公布(新建金仓湖康养中心项目(1 号楼服务型公寓(非住宅)及配套用房、2 号楼福利中心、3 号楼医院医技楼及住院部、地下车库))》最新规划公示文件。
具体内容如下:




太仓房产信息咨询
添加微信,注明“买房”
太房热线为您服务
更多太仓楼市信息请继续关注-太房热线。

凡注明非太房热线来源的作品,作品版权归原发布媒体及文章作者所有。本网转载文章出于传递更多信息之目的,并不意味着赞同其观点或证实其内容的真实性,亦不构成任何建议。