

近日,太仓人民政府网发布了,浏河镇观贤著项目的最新规划调整方案公告!项目部分楼栋改为毛坯销售!
该项目地块位于浏河镇滨江大道西、南海路南,由北京建工四建房地产开发有限公司、北京城乡房屋建设开发有限责任公司联合竞得,土地面积45739.2㎡,1.0≤容积率≤1.80。项目规划796户,3栋17层、12栋10层、1栋8层共计16栋住宅,建面约89㎡(高层)、99㎡(高层)、99㎡(洋房)、109㎡ (洋房),从此前项目销售表现来看,在区域内仍保有一定的竞争力,此次调整部分楼栋为毛坯大概率也是为了进一步缩短销售周期,加快营销步伐。

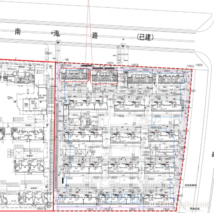
近期,太仓市人民政府网站发布了《建设工程规划批后公布(苏州北建诚开置业有限责任公司新建320585004205GB01631地块住宅用房及其配套用房项目(1-3#、5-13#、15-23#、地库))》最新规划公示文件。



地块位于浏河镇滨江大道西、南海路南,出让面积45739.2㎡,1.0≤容积率≤1.80,为住宅用地。由北京建工四建房地产开发有限公司、北京城乡房屋建设开发有限责任公司联合竞得2023-WG-18-3号地块!成交总价44047万元,成交楼面价5350元/㎡。




太仓房产信息咨询
添加微信,注明“买房”
太房热线为您服务
更多太仓楼市信息请继续关注-太房热线。

凡注明非太房热线来源的作品,作品版权归原发布媒体及文章作者所有。本网转载文章出于传递更多信息之目的,并不意味着赞同其观点或证实其内容的真实性,亦不构成任何建议。