最新公告!老城区新住宅项目规划调整!

栏目 : 规划 来源 : 太仓市人民政府网等 日期 : 2025-09-09

710d612c8791e33d330422e741c6dbd7.jpg


微信图片_2025-08-25_153138_574.png

要闻概述


近日,太仓市人民政府官网发布了,位于桃园菜场东侧的住宅项目规划调整,据悉该项目为城发桃园新著的二期项目。

太房热评

该地块于2022年9月30日成功出让,成交楼面价9400元/㎡,由太仓市明城置业有限公司竞得。根据此前规划信息,项目共计规划有4栋,8层住宅产品。 此前进行过一次规划调整,将原本的养老用房调整为了社区用房,并且对项目的布局做了调整,猜测这与目前在售的桃园新著一期项目的购房反馈有关,此次调整仍属于微调,并未涉及具体的产品项目!

1756104345179410.png


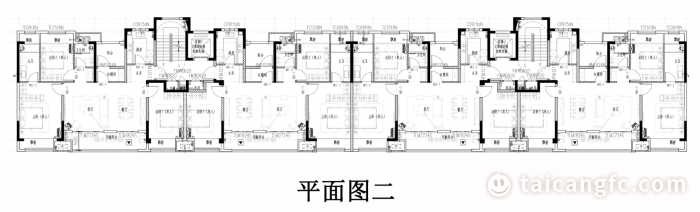
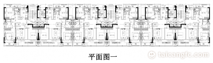
资讯详情

近期,太仓市人民政府网站发布了建设工程规划批后公布(太仓市明城置业有限公司新建320585002111GB01670号地块住宅用房及其配套用房项目(1-3、5-7#、地库))最新规划公示文件。
具体内容如下:


2c3924558d0763b732f8f1d137db73fc.png


98bd1c8de426ed48c8555e15381522fb.png


eb98ecbe0775d201ee9a8940295a7da9.png


8ea391b5d2def38d7d2aa5746eeb8110.png


45ea076f327234ce4cba697998a4af91.png

延伸阅读:


5ce5e86a9bbbab89f0668ec8bb271b92.png


E155C080-7A71-4002-A581-5DA193502183.png


E5C6284E-21BD-4dff-A84D-D61FDB71464C.png


2022-WG-19-2地块


地块位于高新区弇山路北、柳园路西,出让面积11896.7㎡,1<容积率≤1.60,为住宅用地。起始价17893万元,起拍楼面价9400元/㎡,上限价格20484万元,上限楼面价10761元/㎡。

最终由太仓市明城置业有限公司竞得2022-WG-19-2号地块!成交总价17893万元,成交楼面价9400元/㎡


a28fd702ecd9bc5cb055da2531e1ba1a.jpg


太仓房产信息咨询

添加微信,注明“买房

太房热线为您服务

    



    更多太仓楼市信息请继续关注-太房热线


1.jpg


    凡注明非太房热线来源的作品,作品版权归原发布媒体及文章作者所有。本网转载文章出于传递更多信息之目的,并不意味着赞同其观点或证实其内容的真实性,亦不构成任何建议。


免责声明:本站旨在为广大用户提供更多信息服务,不声明或保证所提供信息的准确性和完整性。页面所载内容及数据仅供用户参考和借鉴,最终以开发商实际公示为准。用户因参照本站信息进行相关交易所造成的任何后果与本站无关。如有不当,您可以联系我们:0512-53572098转802。