

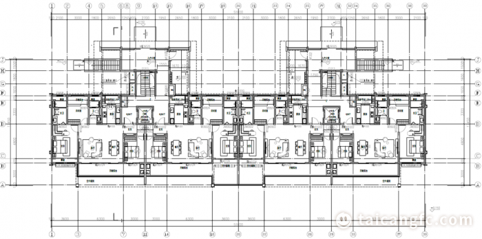
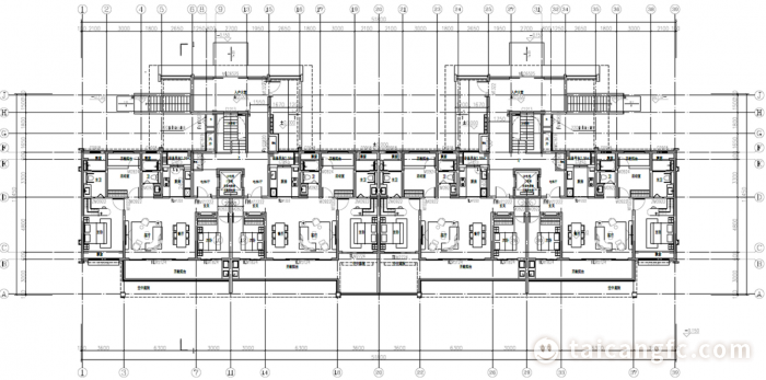
近日,太仓市人民政府网发布了高新区渔业路北、飞沪大道东住宅项目的建设工程规划调整方案公示!其位置就位于规划建设的瑞金医院南侧!
该地块出让面积24637.7㎡,1<容积率≤1.6,最终由太仓市国恒开发建设有限公司(资产集团)于2024年5月27日竞得,成交总价43363万元,成交楼面价11000元/㎡。项目计划建设8栋住宅,其中6栋10层预计为洋房、2栋16层预计为小高层产品。靠近瑞金医院这一优势相信也会对其周边居民带来一定的吸引力。从实地探访情况来看,该项目已经开始动工,但整体进度不算快,期待项目早日发声!

近期,太仓市人民政府网站发布了《建设工程规划批后公布(太仓市国恒开发建设有限公司新建320585003101GB03244号地块住宅用房及配套用房项目(1-3#、4-1#配电房、4-2#配套用房、5-7#、8#配套用房、9#配电房、10-11#、地下车库))》最新规划公示文件。






太仓市国恒开发建设有限公司(资产经营集团)竞得太仓娄江新城1宗新宅地!成交总价43363万元,成交楼面价11000元/㎡。
地块位于 高新区渔业路北、飞沪大道东,出让面积24637.7㎡,1<容积率≤1.6,为城镇住宅用地。最终由太仓市国恒开发建设有限公司竞得2024-WG-10-2号地块!成交总价43363万元,成交楼面价11000元/㎡。


太仓房产信息咨询
添加微信,注明“买房”
太房热线为您服务
更多太仓楼市信息请继续关注-太房热线。

凡注明非太房热线来源的作品,作品版权归原发布媒体及文章作者所有。本网转载文章出于传递更多信息之目的,并不意味着赞同其观点或证实其内容的真实性,亦不构成任何建议。