

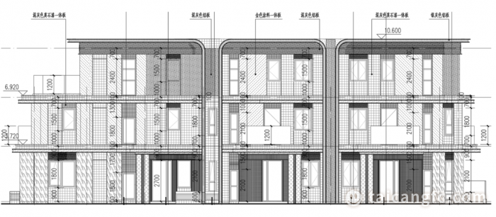
近日,太仓人民政府网发布了,娄江新城中市路北、黄家湾路东地块住宅项目的最新规划调整公示!
该地块出让面积78802㎡,1.0≤容积率≤1.05,最终由太仓市润城置业有限公司(城发集团、资产集团)于2024年11月27日竞得,成交总价104467万元,成交楼面价12600元/㎡。据此次发布的规划平面图来看,项目计划建设53栋住宅,其中44栋3层预计为叠墅、9栋7-10层预计为洋房、2栋公寓以及附属商业产品。从整体上来看,项目属于纯改善住宅,就目前区域的市场来看,除去2025年年末面市的清溪云庭项目,今年预计城投集团滨河新路项目也将同步推出!届时该片区内的改善项目将会面临较为激烈的竞争。

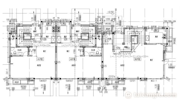
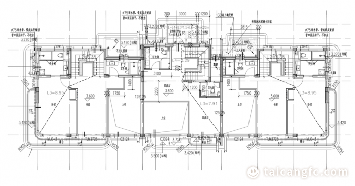
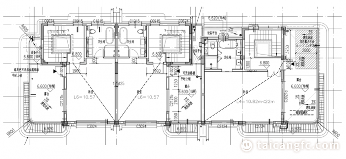
近期,太仓市人民政府网站发布了《建设工程规划批后公布(太仓市润城置业有限公司新建320585003205GB04711号地块商业服务业用房、住宅用房及其配套用房项目(1-13#、15-33#、35-43#、45-50#、地下车库))》最新规划公示文件。






该地块于2024年11月27日,最终由太仓市润城置业有限公司(城发、资产)竞得成交总价104467万元,成交楼面价12600元/㎡。





太仓房产信息咨询
添加微信,注明“买房”
太房热线为您服务
更多太仓楼市信息请继续关注-太房热线。

凡注明非太房热线来源的作品,作品版权归原发布媒体及文章作者所有。本网转载文章出于传递更多信息之目的,并不意味着赞同其观点或证实其内容的真实性,亦不构成任何建议。