

近日,太仓人民政府网发布了,高新区凤莲小区的商业项目的规划调整方案公示!
位于凤莲小区的这个新增商业综合体,目前该项目施工进展推进顺利,项目建成后将会为周边居民提供更完善的居住配套,满足日常购物、休闲娱乐等需求。因其周边多为安置小区,将为这些安置居民的日常生活提供便利性。配套商业和公共设施的完善,将提升这些安置小区的整体吸引力,进而可能带动其二手房价格的提升,整体提高小区的价值。随着综合体的建成投用,将吸引更多人流、物流、资金流汇聚,也为城市形象增添新亮点。

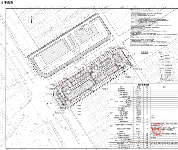
近期,太仓市人民政府网站发布了《建设工程规划批后公布(苏州大海房地产开发有限公司新建 3200303602 号地块小区配套商业、物业及公共设施用房项目(商业楼))》最新规划公示文件。



延伸阅读:



根据公示:综合体位于太仓市高新区五洲路以南、常胜路以西,包括小区配套商业、物业及公共设施用房,总用地面积17940.2平方米,总建筑面积24789.55平方米。

太仓房产信息咨询
添加微信,注明“买房”
太房热线为您服务
更多太仓楼市信息请继续关注-太房热线。

凡注明非太房热线来源的作品,作品版权归原发布媒体及文章作者所有。本网转载文章出于传递更多信息之目的,并不意味着赞同其观点或证实其内容的真实性,亦不构成任何建议。