首页 > 新房 > 桃园新著雅苑 > 户型介绍
桃园新著雅苑
在售
楼盘说明
更新时间:2025-06-18
改善
入库时间:2023-09-07
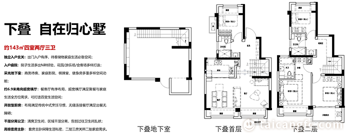
  • 居室: 四室两厅三卫
    建筑面积: 约143㎡
  • 居室: 四室两厅三卫
    建筑面积: 约143㎡
  • 居室: 三室两厅两卫
    建筑面积: 约102㎡
  • 下叠 查看原图
    0512-5678 6666
    桃园新著雅苑 在售
    改善
    • 房屋朝向:
    • 居室: 四室两厅三卫
    • 面积: 143m²
    • 参考价格:
  • 上叠 查看原图
    0512-5678 6666
    桃园新著雅苑 在售
    改善
    • 房屋朝向:
    • 居室: 四室两厅三卫
    • 面积: 143m²
    • 参考价格:
  • 洋房 查看原图
    0512-5678 6666
    桃园新著雅苑 在售
    改善
    • 房屋朝向:
    • 居室: 三室两厅两卫
    • 面积: 102m²
    • 参考价格:
免责声明:本站旨在为广大用户提供更多信息服务,不声明或保证所提供信息的准确性和完整性。页面所载内容及数据仅供用户参考和借鉴,最终以开发商实际公示为准。用户因参照本站信息进行相关交易所造成的任何后果与本站无关。如有不当,您可以联系我们:0512-53572098转802。