

近日,太仓人民政府网发布了,北沿江配套项目的规划方案公示!
对于沿江铁路而言,这不仅是一个车站的扩容,更是整条沿江高铁通道运营效能和服务能级的提升。它通过构建高效的“零距离换乘”系统,将极大优化上海、南京、合肥三大都市圈之间的客流集散效率。而北沿江项目将会显著提升太仓在长三角城市网络中的战略地位。更便捷的交通将加速人才、资金与产业的汇聚,为城市能级跃升注入强劲动力,从而提升板块的吸引力和成熟度,吸引更多关注通勤便利与区域发展潜力的购房者,对周边楼市形成长期利好。

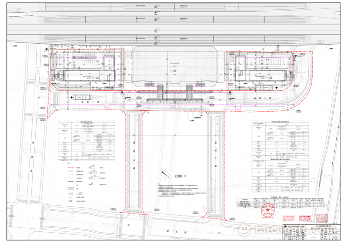
近期,太仓市人民政府网站发布了《建设工程规划批后公布(太仓市铁路投资有限公司新建北沿江铁路太仓站配套基础设施项目(中央落客雨棚、北综合楼、南综合楼、地下车库))》最新规划公示文件。



延伸阅读:

项目位于江苏省太仓市,地处沪苏交界核心区域,依北沿江高铁(沪渝蓉高铁)太仓站站房建设。项目占地面积4.54万平方米,总建筑面积2.92万平方米,建设内容主要包括地库、公交车停车场、出租车停车场、配套辅助用房、道路等。
项目涉及专业多、工序衔接紧密,交叉施工难度大;地下车库、集水坑等部位埋深较大,地下水压力高,对地下结构防水与抗渗质量控制提出了更高要求。

作为北沿江高铁太仓站的关键配套工程,项目承载着铁路客流集散与城市交通接驳的核心功能。 项目团队以“开工即决战、起步即冲刺”的攻坚姿态,牢固树立精品意识,狠抓现场标准化管理,全力全速推进项目建设。
太仓站配套基础设施项目引入智能地下车库、无缝换乘系统,实现“到发即疏散、零距离换乘”。
太仓房产信息咨询
添加微信,注明“买房”
太房热线为您服务
更多太仓楼市信息请继续关注-太房热线。

凡注明非太房热线来源的作品,作品版权归原发布媒体及文章作者所有。本网转载文章出于传递更多信息之目的,并不意味着赞同其观点或证实其内容的真实性,亦不构成任何建议。